For Best Offers Fill Your Details

Renuka Realty Developer

Renuka Realty

Developer

Tathawade, Pune Location

Tathawade, Pune

Location

About Renuka Panchatattva Tathawade Project

Renuka Panchatattva Tathawade is a Project by Renuka Realty situated in the most premium location of Pune Tathawade, Bhumkar chowk offers 2 & 3 BHK Flats with the availability of Jodi Apartments. Also get Floor Plan, Price Sheet, RERA ID, Reviews, Possession Timeline, Construction Status, Location Advantages, Address, Amenities & Specifications. Renuka Realty, Renuka Panchatattva Pune has 5 Tower Terra, Marina, Ignis of 21 Storeys. Renuka Panchatattva Pune Maha RERA P52100048051 with Carpet of 2 BHK 752sqft to 3 BHK 1100sqft, with Starting Price 89 lakh. Renuka Realty Pune Property Features Amenities like Swimming pool, Children Play area, Senior Citizen area, Jogging Track, Indoor games, skating Rink, Barbeque Area, Acupressure Pathway, Amphitheater, Party lawn, Landscaped garden, Yoga room, Community Hall, Gymnasium, Multipurpose party area with Buffet Counter. Renuka Panchatattva Pune Has Excellent Connectivity 3 Min from Indira college, 2 Min from Tathawade Chowk, 3 Min from Mumbai Pune Highway, 5 Min from Poddar International school, 10 Min from Aditya Birla hospital, 5 Min from Phoenix market City, 10 min From Hinjewadi IT Park, 5 Min from metro Station.

 Pune is well-connected to Mumbai Pune Expressway, Hinjewadi, Pimpri Chinchwad, Akurdi Station, Pune international Airport.

_ Elevation Image

Renuka Panchatattva Tathawade Overview

Project Name

Project Name

Renuka Panchatattva
Location

Location

Tathawade, Pune
Developer Name

Developer Name

Renuka Realty
TOTAL TOWERS

TOTAL TOWERS

5
FLOORS

FLOORS

21
APARTMENTS

APARTMENTS

2 & 3 BHK
AREA

AREA

752 – 1100 Sqft
POSSESSION

POSSESSION

Under Construction
RESEDENTIAL

RESEDENTIAL

Property

Renuka Panchatattva Tathawade Property Specification

4.5 acre land Parcel With 60% Open spaces
40+ lifestyle Rooftop Amenities
Spacious 2 BHK & 3 BHK Homes
High Rise Tower with 3 level Parking

Configuration & Price Of Renuka Panchatattva Tathawade

Type Carpet Area (sq ft) Price
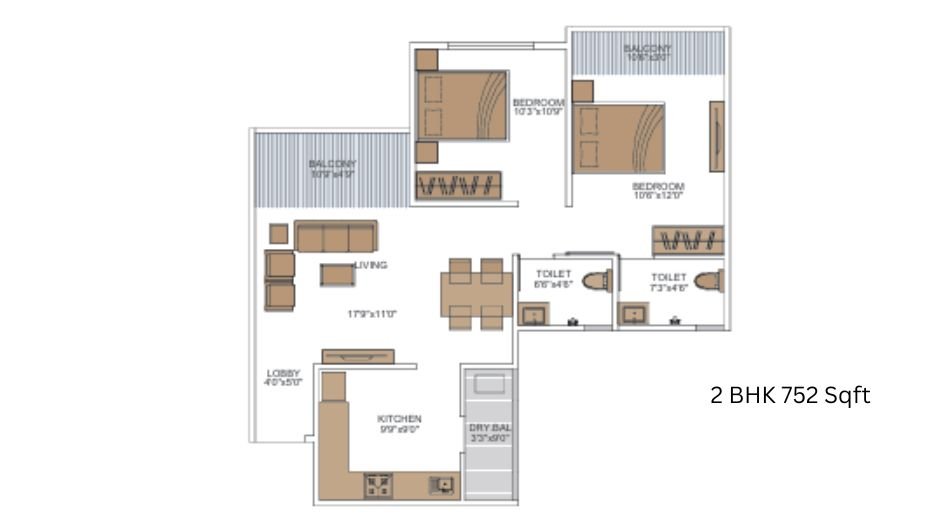
2 BHK 752 sqft 89 lacs
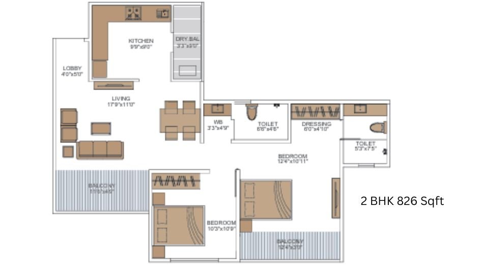
2 BHK 826 sqft 97lacs
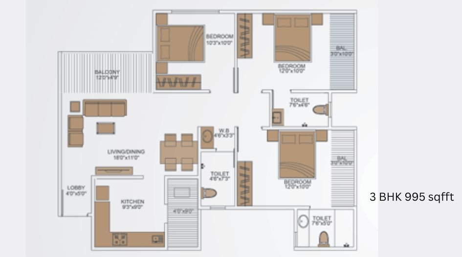
3 BHK 995 sqft 1.20cr
Type Carpet Area (sq ft) Price
2 BHK 752 sqft 89 lacs
2 BHK 826 sqft 97lacs
3 BHK 995 sqft 1.20cr
Type Carpet Area (sq ft) Price
3 BHK 1100 sqft 1.30cr

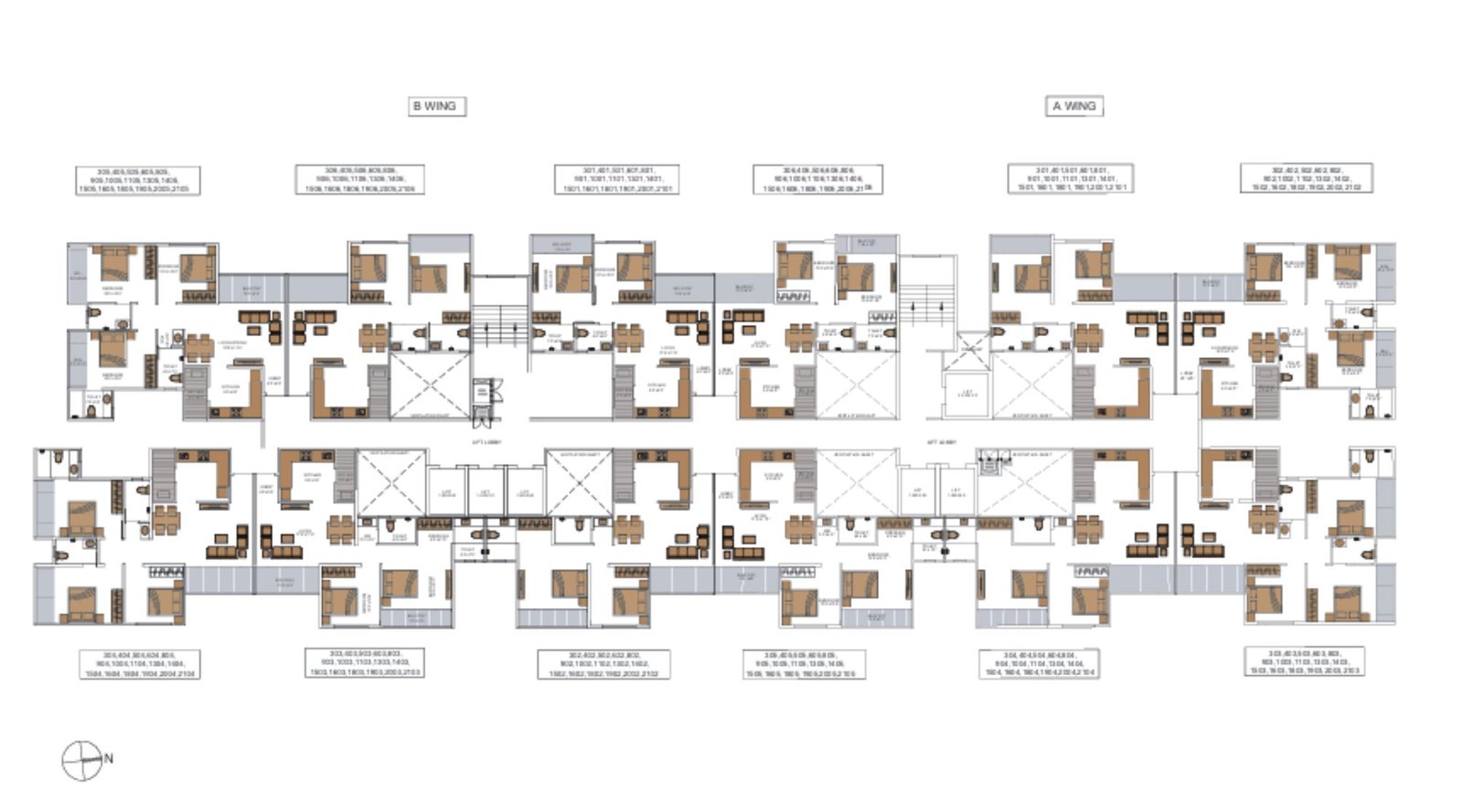
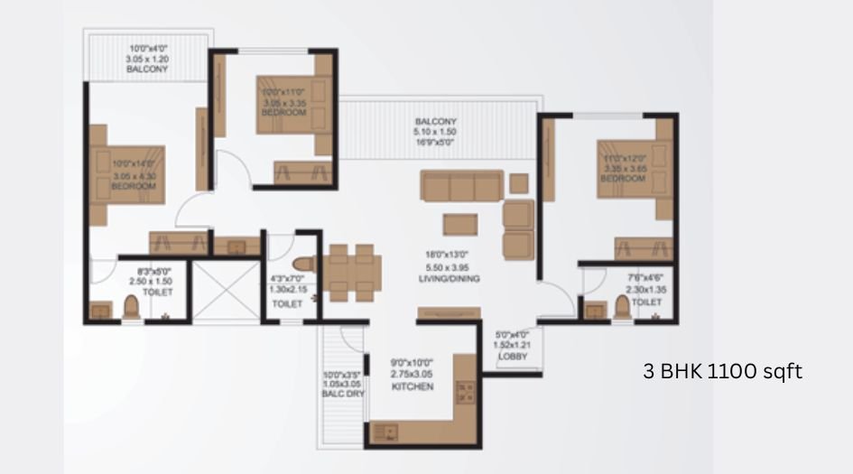
Renuka Panchatattva Tathawade Floor Plan

Renuka Panchatattva Tathawade Walkthrough Video

image

Renuka Realty

Since 1992, Renuka Realty has been more than just a builder; we've been crafting spaces where happiness truly resides. With over three decades of experience, our dedication to creating homes that inspire joy is unparalleled. From luxurious apartments to cozy family dwellings, every Renuka Realty project is thoughtfully designed to seamlessly blend comfort, aesthetics, and functionality.

Enquire Now

Renuka Panchatattva Tathawade Construction Status

Renuka Panchatattva Tathawade Location

Renuka Panchatattva Tathawade Sales Gallery / Office Address & Experience Center

Renuka Pancha Tattva is an RERA-authorized Renuka Pancha Tattva, Bhumkar Chowk Rd, Ram Nagar, Tathawade, Pune 411033


Renuka Panchatattva Tathawade MahaReara

P52100048051

P52100048051

The website project is registered under https://maharera.mahaonline.gov.in

Frequently Asked Question

2 BHK  642–818 sqft, 2.5 BHK 886 sqft, and 3 BHK 870–1100 sqft

Clubhouse gym, swimming pool, kids’ pool, indoor games, coworking spaces, multipurpose court, skatingrink, river walking acupressure pathway, yoga/meditation areas, library, crèche, senior citizen zone, temple, theatre lawn

Addressed at Bhumkar Chowk Road, Ram Nagar, Tathawade, Pimpri–Chinchwad, Pune (PIN 411033), offering quick access to Tathawade & Bhumkar Chowks

Renuka Panchatattva is authorized registered Project with MahaRERA number P52100048051

Renuka Panchatattva Tathawade The information provided on this website is intended exclusively for informational purposes and should not be construed as an offer of services. This site is managed by a RERA authorized real estate agent namely Digipace Consulting (OPC) Private Limited (Registered Agent bearing RERA No: A51700026634).

MahaRERA Registration Number: Renuka Panchatattva P52100048051

The pricing information presented on this website is subject to alteration without advance notification, and the assurance of property availability cannot be guaranteed. The images showcased on this website are for representational purposes only and may not accurately reflect the actual properties. We may share your data with Real Estate Regulatory Authority (RERA) registered Developers for further processing as necessary. Additionally, we may send updates and information to the mobile number or email address registered with us. All rights reserved. The content, design, and information on this website are protected by copyright and other intellectual property rights. Any unauthorized use or reproduction of the content may violate applicable laws. For accurate and up-to-date information regarding services, pricing, availability, and any other details, it is recommended to contact us directly through the provided contact information on this website. Thank you for visiting our website.